Contact Twitter Facebook LinkedIn Houzz

Mars Pizza

Mars Pizza

mars pizza | grand avenue, mars, pa
architecture  |  adaptive reuse – renovation

 

Our client, seeking to expand its operations and establish a prominent presence, acquired a former Rite Aid building at a key corner location in Mars, Pennsylvania. The existing structure, dating back to the early 1900s, presented significant inherent challenges. These included substantially uneven floors, compromised masonry, and a dated wood roof framing system, all of which complicated the integration of modern restaurant facilities and code compliance within its small footprint. The primary objective was to transform this dilapidated space into a functional and inviting commercial pizza establishment.

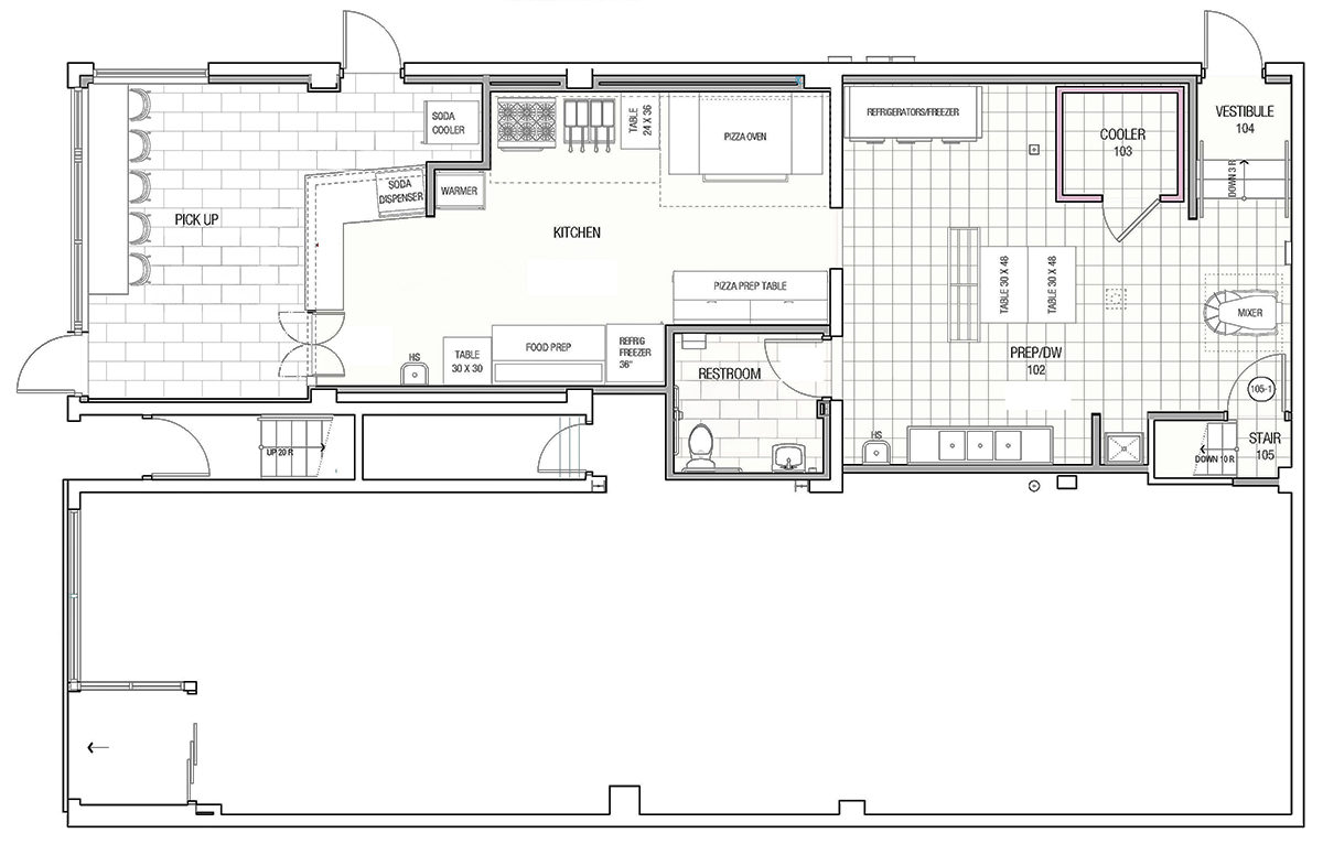
The project was met with considerable barriers from the very beginning. The compact 1,195-square-foot space presented a significant challenge, forcing the team to find a way to fit a complete commercial pizza kitchen and its support spaces into an exceptionally tight area. An important technical obstacle arose from the installation of the commercial hood and HVAC systems. This required precise and intricate coordination, as well as restructuring the roof framing to handle the new openings and bear the weight of the rooftop equipment.

Despite the inherent difficulties, the project presented a unique opportunity to not only expand Mars Pizza’s business but also to act as a catalyst for the revitalization of a highly visible corner in the Mars community. The owner’s preference for a design sympathetic to local architecture guided the process, shifting the focus from radical overhaul to a more sensitive reinvention.

The architectural approach centered on exploring how to manipulate ordinary materials and familiar forms creatively. The design team undertook a detailed analysis of local architectural references, studying how to translate their language into a new expression. This process also involved an intricate and collaborative effort with the owner to efficiently work the kitchen’s complete program into the minimal footprint. The goal was to bridge historical aesthetics with contemporary construction while creating a highly functional space within a restrictive layout. The project’s complex demands were successfully met. A high-efficiency commercial pizza kitchen, complete with a dedicated dishwasher prep area, was meticulously fitted into the constrained space, ensuring optimal workflow and operational capacity. The new, durable PVC roof provides the necessary resilience against exhaust byproducts.

Architecturally, the facade was reimagined through a careful study of proportions and forms. The ground-level facade was reinterpreted using standard aluminum storefront components, but with tailor-made details that subtly echo and modernize traditional designs. The upper facade displays classical architectural references, reinterpreted with contemporary materials, precise trim, bold signage, and sophisticated lighting, resulting in a cohesive yet distinctive presence.

The choice of dark colors for the exterior creates a striking and ambiguous facade, making a bold statement for the prominent corner property while blending with the surroundings. The absence of a dining area allowed for the maximization of the kitchen and prep areas, aligning with the business’s pickup-centric model.

Project Type: Commercial Adaptive Reuse – Restaurant
Project location – Mars, PA
Design and Construction: June 2024 – June 2025
Square footage involved (both sides) – 2,423 sf
Square footage of focus – 1,195 sf
Completion: 2025
Owner/Client: The Porreca Company
MEP Engineering Consultant: Claitman Engineering
General Contractor: Shannon Staley + Sons
Signage Company: Blue Sky Sign Co.
Aluminum Storefront and Entrance Door: Rex Glass
Photography: lee CALISTI architecture+design

return to portfolio                                                                                                             return to home page